Εγκατάσταση καρτών επέκτασης στο Mac Pro (Ικρίωμα)
Μπορείτε να διαμορφώσετε το Mac Pro σας εγκαθιστώντας επιπλέον κάρτες στις υποδοχές επέκτασης PCI Express.
Όλες οι υποδοχές είναι συνδεδεμένες μέσω ενός μεταγωγέα PCI Express στην κύρια πλακέτα λογικής του Mac Pro. Το εύρος ζώνης του μεταγωγέα PCI Express ρυθμίζεται αυτόματα μέσω εκχωρήσεων χώρων συγκέντρωσης. Μπορείτε να χρησιμοποιήσετε το Βοήθημα υποδοχών επεκτάσεων για χειροκίνητη ρύθμιση των εκχωρήσεων χώρων συγκέντρωσης. Για περισσότερες πληροφορίες σχετικά με το Βοήθημα υποδοχών επεκτάσεων, ανατρέξτε στο άρθρο της Υποστήριξης Apple Εγκατάσταση καρτών PCIe cards στο Mac Pro.
Για βέλτιστη απόδοση, χρησιμοποιήστε οποιαδήποτε υποδοχή έχει τουλάχιστον όσες λωρίδες όσες η κάρτα που χρησιμοποιείται. Δείτε τον παρακάτω πίνακα για λεπτομέρειες.
Οι μονάδες MPX από το Mac Pro με επεξεργαστή Intel δεν υποστηρίζονται στο Mac Pro με Apple silicon.
Σημείωση: Αυτές οι επιλογές είναι για τον σταθμό βάσης ικριώματος Mac Pro με Apple silicon. Αν έχετε ικρίωμα-σταθμό εργασίας Mac Pro με επεξεργαστή Intel, δείτε την ενότητα Εγκατάσταση καρτών επέκτασης στο Mac Pro. Αν έχετε πύργο-σταθμό εργασίας Mac Pro, δείτε την ενότητα Εγκατάσταση καρτών επέκτασης στο Mac Pro.
Υποδοχή | Αριθμός λωρίδων | Υποστήριξη PCI Express |
|---|---|---|
Υποδοχή 7 | x4 (Προεγκατεστημένη με την κάρτα εισόδου/εξόδου της Apple I/O) | PCIe 3.0 |
Υποδοχή 6 | x8 | PCIe 4.0 |
Υποδοχή 5 | x8 | PCIe 4.0 |
Υποδοχή 4 | x8 | PCIe 4.0 |
Υποδοχή 3 | x8 | PCIe 4.0 |
Υποδοχή 2 | x16 | PCIe 4.0 |
Υποδοχή 1 | x16 | PCIe 4.0 |
Το Mac Pro έχει τέσσερις υποδοχές διπλού εύρους και τρεις υποδοχές μονού εύρους, οι οποίες μπορούν να προσαρμοστούν με κάρτες για επέκταση των δυνατοτήτων του Mac Pro. Η υποδοχή 7 είναι προεγκατεστημένη με την κάρτα εισόδου/εξόδου της Apple, αλλά αυτή η κάρτα μπορεί να αφαιρεθεί για να εγκατασταθούν άλλες κάρτες PCIe.

ΠΡΟΕΙΔΟΠΟΙΗΣΗ: Για βέλτιστο εξαερισμό, αφήστε αρκετό χωρό μεταξύ των καρτών καθώς τις εγκαθιστάτε. Αν αφαιρέσετε μια κάρτα και δεν εγκαταστήσετε μια άλλη στη θέση της, τοποθετήστε ένα κάλυμμα πρόσβασης θύρας στην κενή υποδοχή για να μην εισέρχονται ξένα αντικείμενα στο άνοιγμα. Μια ακάλυπτη υποδοχή μπορεί να προκαλέσει βλάβη επηρεάζοντας την κυκλοφορία του αέρα που ψυχραίνει τα εσωτερικά συστατικά μέρη.
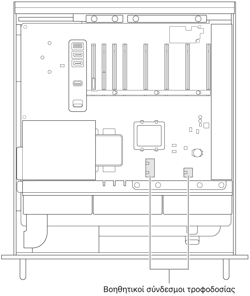
Σημαντικό: Συνδέστε τις κάρτες στην κατάλληλη πηγή ρεύματος, όπως απεικονίζεται παρακάτω. Να χρησιμοποιείτε μόνο καλώδια που πωλούνται στο Διαδίκτυο στη διεύθυνση apple.com ή σε ένα Apple Store, ή καλώδια που συνοδεύονται από συμβατές κάρτες PCIe τρίτων εταιριών.
Να είστε προσεκτικοί κατά τη σύνδεση με βοηθητικούς συνδέσμους. Κατά την εγκατάσταση ενός αξεσουάρ στο σύστημά σας που χρησιμοποιεί ρεύμα από βοηθητικό σύνδεσμο, συνδέστε πρώτα τον βοηθητικό σύνδεσμο και στη συνέχεια εγκαταστήστε την υπομονάδα. Προσέξτε να μη σας πέσει η υπομονάδα ενώ είναι συνδεδεμένη στον βοηθητικό σύνδεσμο, διότι μπορεί να προκληθεί βλάβη στον βοηθητικό σύνδεσμο ή στην πλακέτα κυκλωμάτων. Αν ο βοηθητικός σύνδεσμος καταστραφεί, μην εκκινήσετε τον υπολογιστή διότι κάτι τέτοιο ενδέχεται να προκαλέσει περαιτέρω βλάβη. Για περισσότερες πληροφορίες σχετικά με την επισκευή του Mac Pro σας, ανατρέξτε στην ενότητα Σημαντικές πληροφορίες ασφάλειας για το Mac σας.

Ακολουθήστε αυτά τα βήματα για να εγκαταστήσετε κάρτες επέκτασης στο Mac Pro σας.
Απενεργοποιήστε το Mac Pro σας επιλέγοντας το μενού Apple
> «Τερματισμός».Περιμένετε 5 έως 10 λεπτά για να μειωθεί η θερμοκρασία του, προτού αγγίξετε τα εσωτερικά συστατικά μέρη, τα οποία ενδέχεται να καίνε.
Αποσυνδέστε από το Mac Pro όλα τα καλώδια εκτός από το καλώδιο ρεύματος.
Αγγίξτε το μεταλλικό τμήμα στην εξωτερική πλευρά του Mac Pro σας, για να αποφορτίσετε τυχόν στατικό ηλεκτρισμό.
Σημείωση: Πρέπει πάντα να αποφορτίζετε τον στατικό ηλεκτρισμό πριν αγγίξετε τμήματα ή εγκαταστήσετε συστατικά μέρη εντός του Mac Pro σας. Για την αποφυγή δημιουργίας στατικού ηλεκτρισμού, μην περπατάτε στο δωμάτιο μέχρι να ολοκληρώσετε την εγκατάσταση των καρτών επέκτασης.
Αποσυνδέστε το καλώδιο ρεύματος.
Σύρετε το Mac Pro έξω από το ικρίωμα.
Σημείωση: Μπορείτε να εγκαταστήσετε κάρτες επέκτασης ενόσω το Mac Pro είναι τοποθετημένο μέσα στο ικρίωμα.
Πιέστε προς τα μέσα τους σύρτες στις δύο πλευρές του καλύμματος και μετά ανασηκώστε το κάλυμμα και αφαιρέστε το με ολίσθηση από τον υπολογιστή.

Αφαιρέστε τα απαραίτητα πλευρικά υποστηρίγματα.
Αν θέλετε να εγκαταστήσετε μια κάρτα στις Υποδοχές 1, 2, 3, ή 4, αφαιρέστε το πλευρικό υποστήριγμα κάτω δεξιά.
Αν θέλετε να εγκαταστήσετε μια κάρτα στις Υποδοχές 5, 6 ή 7, αφαιρέστε το πλευρικό υποστήριγμα πάνω δεξιά.
Αν θέλετε να εγκαταστήσετε μια κάρτα πλήρους μήκους αφαιρέστε το αριστερό πλευρικό υποστήριγμα.

Αφαιρέστε τα καλύμματα της υποδοχής.

Σύρετε την κλειδαριά προς τα δεξιά.

Αφαιρέστε τη νέα κάρτα από την ανθεκτική συσκευασία της που προσφέρει ηλεκτροστατική προστασία και κρατήστε την από τις γωνίες της. Μην αγγίζετε τον χρυσό σύνδεσμο ή τα συστατικά μέρη πάνω στην κάρτα.
Σημείωση: Χρησιμοποιείτε μόνο υπομονάδες PCIe που έχουν πιστοποιητικό ασφάλειας (CSA, UL ή ισοδύναμο) και για τις οποίες υπάρχει σαφή διευκρίνιση συμβατότητας με τις προδιαγραφές του βιομηχανικού προτύπου PCIe.
Σύρετε την κάρτα στη θέση της.

Σύρετε την κλειδαριά προς τα αριστερά.

Εγκαταστήστε πάλι τα δεξιά πλευρικά υποστηρίγματα. Αν εγκαταστήσατε μια κάρτα πλήρους μήκους και αφαιρέσατε επίσης το αριστερό πλευρικό υποστήριγμα, εγκαταστήστε πάλι το αριστερό πλευρικό υποστήριγμα.

Τοποθετήστε πάλι το κάλυμμα και φροντίστε να ασφαλίσουν οι σύρτες.
Το Mac Pro δεν μπορεί να εκκινηθεί μέχρι να επανατοποθετήσετε το κάλυμμα.

Τοποθετήστε πάλι το Mac Pro στο ικρίωμα.
Επανασυνδέστε όλα τα καλώδια και το καλώδιο ρεύματος στο Mac Pro σας.